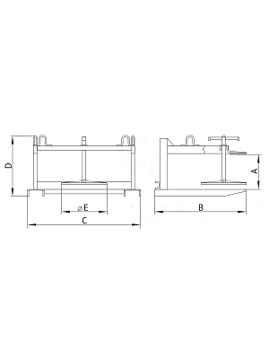
Обозначение ЗСТк-0,5-45-310 г/п 0,5 тн A 45-310 мм B 825 мм C 1000 мм D 556 мм E 400 мм
Назначение Захват предназначен для подъема и перемещения кровельных панелей в горизонтальном положении при строительстве быстровозводимых зданий и сооружений.
Конструкция Конструкция захвата для панелей основана на схеме работы струбцины, что позволяет регулировать усилие сжатия, также предусмотрены накладки из резины, предохраняющие поверхность груза от повреждений. Захват подвешивается на крюк крана с помощью двухветвевых строп, например 2СК.
Захват необходимо монтировать в точке, максимально близкой к центру тяжести панели. Зажатие груза происходит с помощью винтовой передачи, конструкция захвата позволяет создать усилие достаточное для надежной фиксации панели. При работе с длинномерными грузами рекомендуется использовать пару захватов с подвесом на траверсе.
Применяется для безопасного подъёма и перемещения мраморных плит. Захват подвешивается на кран-балку, подводится к массиву и опускается на него. После этого зажимается специальной струбциной с резиновыми прокаладками воизбежание повреждения перемещаемого груза. Грузоподъемность - 0,5 тн Максимальная толщина плиты - 220 мм
Обозначение ЗСТу-0,25-50-250 (Захват-струбцина для мягких панелей) Г/п 0,25 тн A 50 мм B 250 мм C 26 мм D 90 мм E 140 мм
Захват предназначен для подъема и перемещения сэндвич-панелей и аналогичных грузов при строительстве быстровозводимых зданий и сооружений. Конструкционные особенности сендвич-панелей, а именно отсутствие технологических отверстий, петель, проушин, ограничивают использование широкого круга грузозахватных механизмов и приспособлений.
Конструкция захвата для панелей основана на схеме работы струбцины, что позволяет регулировать усилие сжатия, также предусмотрены накладки из резины, предохраняющие поверхность груза от повреждений. Переставная прижимная лапка позволяет регулировать зев захвата, это дает возможность работать с грузами толщиной от 50 до 250мм (практически весь размерный ряд сэндвич-панелей). Захват позволяет перемещать и устанавливать панель максимально близко к несущей конструкции.
Исполнение ЗСТу отличается болтовым соединением прижимной лапки к тела захвата. Для увеличения зева захвата потребуется раскрутить болт, поэтому захват рекомендуется использовать при продолжительных работах с грузами одного типоразмера.
Обозначение ЗСТу-0,25-50-250 (Захват-струбцина для мягких панелей) Г/п 0,25 тн A 50 мм B 250 мм C 26 мм D 90 мм E 140 мм
Захват предназначен для подъема и перемещения сэндвич-панелей и аналогичных грузов при строительстве быстровозводимых зданий и сооружений. Конструкционные особенности сендвич-панелей, а именно отсутствие технологических отверстий, петель, проушин, ограничивают использование широкого круга грузозахватных механизмов и приспособлений.
Конструкция захвата для панелей основана на схеме работы струбцины, что позволяет регулировать усилие сжатия, также предусмотрены накладки из резины, предохраняющие поверхность груза от повреждений. Переставная прижимная лапка позволяет регулировать зев захвата, это дает возможность работать с грузами толщиной от 50 до 250мм (практически весь размерный ряд сэндвич-панелей). Захват позволяет перемещать и устанавливать панель максимально близко к несущей конструкции.
Исполнение ЗСТу отличается болтовым соединением прижимной лапки к тела захвата. Для увеличения зева захвата потребуется раскрутить болт, поэтому захват рекомендуется использовать при продолжительных работах с грузами одного типоразмера.
Грузоподъемность, т 0,5 Ширина зева, мм 25-280 Толщина листа, мм 0-280 Размеры, мм 450х300х435 Испытательная нагрузка (статичная), кг 630 Страна производства Россия
Захват предназначен для вертикального подъема и перемещения сэндвич-панелей. Рабочая г/п 0,4 тн Толщина сэндвич-панели 50 мм Условия эксплуатации: - наименьшая температура окружающей среды -40С - наибольшая температура окружающей среды и поднимаемого груза +100С
Изготовитель гарантирует соответствие изделия требованиям технической документации в течение 0,5 года при соблюдении потребителем условий хранения и эксплуатации.
Захват предназначен для вертикального подъема и перемещения сэндвич-панелей. Рабочая г/п 0,4 тн Толщина сэндвич-панели 100 мм Условия эксплуатации: - наименьшая температура окружающей среды -40С - наибольшая температура окружающей среды и поднимаемого груза +100С
Изготовитель гарантирует соответствие изделия требованиям технической документации в течение 0,5 года при соблюдении потребителем условий хранения и эксплуатации.
Захват предназначен для вертикального подъема и перемещения сэндвич-панелей. Рабочая г/п 0,4 тн Толщина сэндвич-панели 150 мм Условия эксплуатации: - наименьшая температура окружающей среды -40С - наибольшая температура окружающей среды и поднимаемого груза +100С
Изготовитель гарантирует соответствие изделия требованиям технической документации в течение 0,5 года при соблюдении потребителем условий хранения и эксплуатации.
Захват предназначен для вертикального подъема и перемещения сэндвич-панелей. Рабочая г/п 0,4 тн Толщина сэндвич-панели 200 мм Условия эксплуатации: - наименьшая температура окружающей среды -40С - наибольшая температура окружающей среды и поднимаемого груза +100С
Изготовитель гарантирует соответствие изделия требованиям технической документации в течение 0,5 года при соблюдении потребителем условий хранения и эксплуатации.
Захват для подъема, перемещения и монтажа стеновых сэндвич-панелей z-lock шириной шириной 100мм. Обеспечивает надежную фиксацию Грузоподъемность, кг 200 Размеры, толщина панели, мм 100 Длина, мм 150 Ширина, мм 100 Высота, мм 130 Вес, кг 1,87 Температура эксплуатации, С -20/+40
Захват для подъема, перемещения и монтажа стеновых сэндвич-панелей z-lock шириной шириной 120 мм. Обеспечивает надежную фиксацию Грузоподъемность, кг 200 Размеры, толщина панели, мм 120 Длина, мм 150 Ширина, мм 120 Высота, мм 130 Вес, кг 2 Температура эксплуатации, С -20/+40
Захват для подъема, перемещения и монтажа стеновых сэндвич-панелей z-lock шириной шириной 150 мм. Обеспечивает надежную фиксацию Грузоподъемность, кг 200 Размеры, толщина панели, мм 150 Длина, мм 150 Ширина, мм 150 Высота, мм 130 Вес, кг 2,3 Температура эксплуатации, С -20/+40
Захват для подъема, перемещения и монтажа стеновых сэндвич-панелей z-lock шириной от 100/120/150мм. Обеспечивает надежную фиксацию Грузоподъемность, кг 250 Размеры, толщина панели, мм 100/120/150 Длина, мм 150 Ширина, мм 150 Высота, мм 150 Вес, кг 2,6 Температура эксплуатации, С -20/+40